Maître de l'ouvrage
Privé
Prestations
phase SIA 4.31, 32, 33 : avant-projet, projet, autorisation de construire
phase SIA 4.41 : appel d'offres
phase SIA 4.51, 52, 53 : plans d'exécution, direction des travaux et gestion financière, achèvement
01 / Élégance et audace






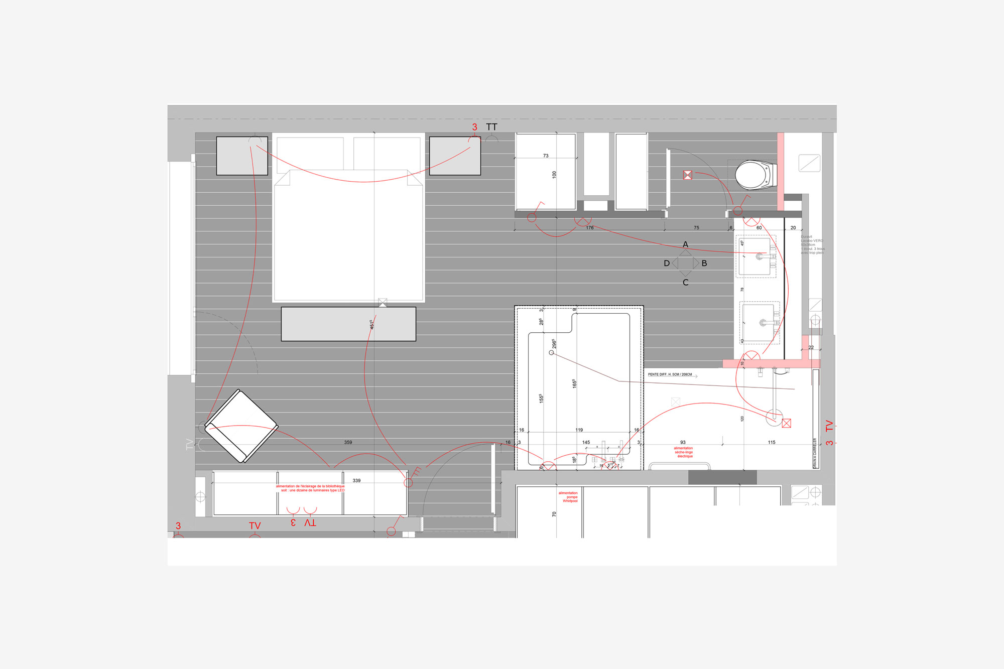
02 / Un intérieur fluide
Le hall d'entrée s'ouvre à la fois sur le salon et sur la salle à manger, gagnant ainsi en luminosité et en fluidité. Le passage vers la cuisine a été agrandi et équipé d'une porte coulissante dissimulée derrière un doublage. Les simples noyaux sanitaires ont été remplacés par des salles d'eau lumineuses, en relation directe avec les chambres, devenant ainsi de véritables espaces de détente aux dimensions confortables. L'accès aux chambres a été retravaillé afin de raccourcir le couloir et d’intégrer un dressing à la chambre principale
03 / Intégrer la technique
Un faux plafond a permis d'éclairer efficacement le dressing, mais la chaleur des spots encastrés, cumulée avec le chauffage au plafond, présentait un risque de surchauffe (les LED n'existaient pas encore !). Ce problème a été résolu en reliant l'espace entre le faux plafond et la dalle à la ventilation de l'ancienne salle de bain. La porte vitrée donnant sur le balcon a été remplacée par trois panneaux coulissants, offrant une ouverture plus généreuse. Une chape en résine a dû être posée à certains endroits, en raison des modifications typologiques, notamment l’ajout d’un adoucisseur desservant les deux salles de bains, qui a nécessité de nombreux passages techniques dans le sol.






04 / Anecdote
Le début du projet s'est avéré un peu laborieux : hormis le remplacement des revêtements et de l’appareillage, nous ne trouvions pas d’idée pertinente pour répondre aux attentes du maître d'ouvrage. Ce dernier nous a alors encouragés à nous affranchir de l'existant et à « y aller carrément ». Dès lors, nous avons supprimé des galandages, ouvert des murs porteurs et repensé entièrement les salles de bains. Dans notre élan, nous avons même proposé d’installer un minibar et un jacuzzi dans la chambre à coucher !
Autres projets
706famille + jeanne hersch + première villa + cheminée + 2007 + escalier + apa 28944 + rouge + surélévation
1203articulation + apa 36995 + béton ciré + losanges + spirale + volumes ouverts
1302transmission familiale + minimalisme + Coltrane + indépendance + terrasse arborée + finesse + jazz + légèreté
2308dichoïque + jorge cañete + intelligence artificielle + rue du Rhône + onirique + café + APA 329424 + IDP + chocolat + Genilac + écailles métalliques + design + écrans intégrés + multi-sensoriel + laiton
2107pavillon • zinc quartz • diplomatie • réception • souq • lumière naturelle • dd112525 • symétrie • pascal fantin • transparence
1001tuiles + chambre de bonnes + vide + charpente + frigo encastré + îlot central + escalier chêne-sapin + lucarnes + volet + nid + charles eames + combles
1104art déco + chêne-Bougeries + terrasse extérieure + fenêtre en chêne + apa 35989 + nouvelle cuisine + magnolia
