Maître de l'ouvrage
Commune de Chêne-Bougeries
Prestations
phase SIA 4.31, 32, 33 : avant-projet, projet, autorisation de construire
phase SIA 4.41 : appel d'offres
phase SIA 4.51, 52, 53 : plans d'exécution, direction des travaux et gestion financière, achèvement
01 / Habiter les combles








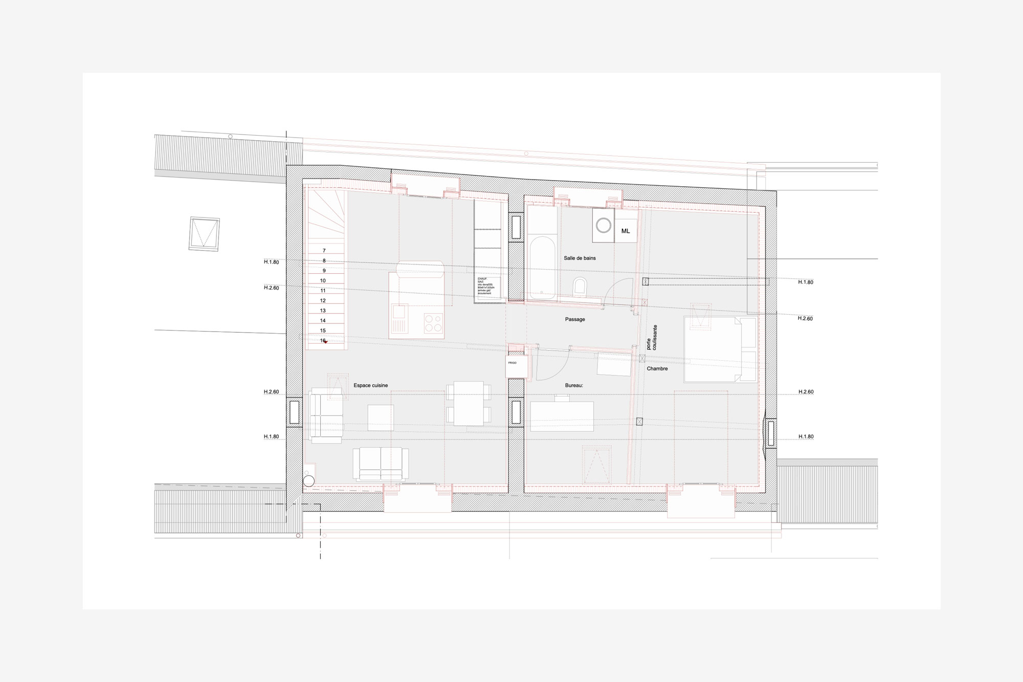
02 / Faire place sous les toits
Le projet dispose quatre lucarnes permettant de gagner le volume nécessaire à un appartement viable de 3.5 pièces sans avoir à surélever la toiture. La hauteur limitée dicte l'agencement inhabituel de la salle de bain et de la cuisine.
Dans l'espace séjour et cuisine, deux lucarnes se font face et offrent une vue traversante. La cuisine prend la forme d'un îlot loin des murs afin de bénéficier d'une hauteur suffisante. Le petit passage existant dans le mur de refend devient une niche permettant d'encastrer le frigo, tandis qu'un passage plus large est ouvert pour relier les deux parties. Afin d'éviter que des murs de cage d'escalier n'empiètent dans le volume de la pièce, l'entrée de l'appartement se situe sur le palier à l'étage inférieur. L'escalier est pensé comme un élément architectural compact et minimaliste, marquant la transition avec l'immeuble.
03 / Intervenir avec précision
La structure primaire de la charpente est maintenue, laissant les pannes intermédiaires filer devant les nouvelles lucarnes. Quelques renforts structurels sur la ferme et sur le plancher se révèlent nécessaires. Le chauffage de l'appartement est assuré par une petite chaudière à gaz indépendante de l'immeuble. L'escalier est réalisé en un assemblage de bois de sapin et de chêne, le limon est encastré dans l'épaisseur du doublage d'un côté et suspendu au garde-corps de l'autre. La main courante, encastrée dans le doublage, est pourvue d'un éclairage indirect orienté sur les marches.









04 / Anecdote
Vers la fin du chantier, la commune nous a demandé si nous étions intéressé à devenir locataires du nouvel appartement. Un peu surpris, nous avons toutefois saisi l'occasion de pouvoir habiter un logement que nous avions projeté et construit.
Autres projets
706famille + jeanne hersch + première villa + cheminée + 2007 + escalier + apa 28944 + rouge + surélévation
1203articulation + apa 36995 + béton ciré + losanges + spirale + volumes ouverts
1302transmission familiale + minimalisme + Coltrane + indépendance + terrasse arborée + finesse + jazz + légèreté
2308dichoïque + jorge cañete + intelligence artificielle + rue du Rhône + onirique + café + APA 329424 + IDP + chocolat + Genilac + écailles métalliques + design + écrans intégrés + multi-sensoriel + laiton
2107pavillon • zinc quartz • diplomatie • réception • souq • lumière naturelle • dd112525 • symétrie • pascal fantin • transparence
1104art déco + chêne-Bougeries + terrasse extérieure + fenêtre en chêne + apa 35989 + nouvelle cuisine + magnolia
909élégance + cologny + jacuzzi + crema marfil + cheminée + bibliothèques
