Maître de l'ouvrage
Privé
Prestations
phase SIA 32 (partiel) : projet d'exécution
phase SIA 4.41 : appel d'offres
phase SIA 4.51, 52, 53 : plans d'exécution, direction des travaux et gestion financière, achèvement
01 / Texte principal














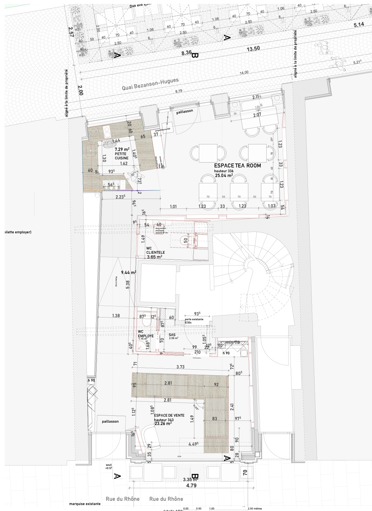
02 / Commentaire sur le plan
La boutique est organisée en deux espaces distincts. Depuis la rue du Rhône, l'espace de vente présente les créations pâtissières et chocolatières. Un couloir coloré mène ensuite à une salle de dégustation intimiste pouvant accueillir une quinzaine de convives. Cette salle tournée vers le Rhône est équipée d'une mini-cuisine permettant les dernières finitions et la préparation des cafés. Des grands écrans tapissent les murs, enrichissant l'expérience visuelle et immersive grâce à des animations générées par intelligence artificielle. Un accès direct vers le quai Bezanson-Hugues ouvre sur une petite terrasse, offrant une vue sur le Rhône, la tour de l’horloge et les façades emblématiques des banques genevoises.
Compte tenu de l'espace restreint disponible, l'organisation intérieure a nécessité un soin particulier pour optimiser les circulations et les surfaces dédiées aux préparations culinaires et à l'accueil.
03 / Aspect constructif et chantier
Plusieurs solutions techniques remarquables caractérisent le projet. Le raccordement au réseau de pompe à chaleur GeniLAC permet d'alimenter un plafond radiant assurant chauffage et rafraîchissement grâce à des tubes d'eau intégrés. Le verre dichroïque utilisé sur les joues des fenêtres et sur certains éléments décoratifs génère des reflets colorés changeants selon les angles de vue, participant au caractère immersif du lieu.
Les murs des sanitaires et les portes de la petite cuisine sont revêtus de plaquettes métalliques semblables à des écailles de poisson, offrant un spectaculaire jeu de lumière et de couleur. Un meuble avec table à langer intégré dans le mur a été dessiné sur mesure, illustrant le soin apporté à chaque détail constructif.







04 / Anecdote
Ce n'est pas notre première collaboration avec Jorge Cañete. Nous avons particulièrement apprécié les échanges créatifs avec lui et son équipe qui nous ont amener à nous questionner sur notre ressenti devant une part de gâteau ou l'aspect d'une porte menant vers un monde imaginaire. Ces discussions peuvent sembler récréatives, mais elles ont nourri des détails du projet tenant de la mise en scène : ainsi, la porte des toilettes est un miroir dichroïque affleurant au mur, et sa poignée prend la forme poétique d'une grande clé. Depuis le couloir, la cuisine apparaît dans contour coloré où la silhouette du barista se découpe derrière un grand panneau de verre, tandis qu'au plafond des formes géométriques tournent lentement au gré des allée et venue des visiteurs.
Plus prosaïquement, la livraison du comptoir a été un moment épique du chantier. Craignant de ne pas pouvoir stationner devant la boutique en pleine journée, nous avons préparer la livraison à la tombée de la nuit. La porte de l'immeuble étant trop étroite de quelques millimètres, nous avions dû organiser son démontage par une équipe de quatre personnes, sous le regard intrigués des passants nocturnes.
Autres projets
706famille + jeanne hersch + première villa + cheminée + 2007 + escalier + apa 28944 + rouge + surélévation
1203articulation + apa 36995 + béton ciré + losanges + spirale + volumes ouverts
1302transmission familiale + minimalisme + Coltrane + indépendance + terrasse arborée + finesse + jazz + légèreté
2107pavillon • zinc quartz • diplomatie • réception • souq • lumière naturelle • dd112525 • symétrie • pascal fantin • transparence
1001tuiles + chambre de bonnes + vide + charpente + frigo encastré + îlot central + escalier chêne-sapin + lucarnes + volet + nid + charles eames + combles
1104art déco + chêne-Bougeries + terrasse extérieure + fenêtre en chêne + apa 35989 + nouvelle cuisine + magnolia
909élégance + cologny + jacuzzi + crema marfil + cheminée + bibliothèques
