Maître de l'ouvrage
Privé
Prestations
phase SIA 4.31, 32, 33 : avant-projet, projet, autorisation de construire
phase SIA 4.41 : appel d'offres
phase SIA 4.51, 52, 53 : plans d'exécution, direction des travaux et gestion financière, achèvement
01 / Adapter sans dénaturer










02 / Circuler librement
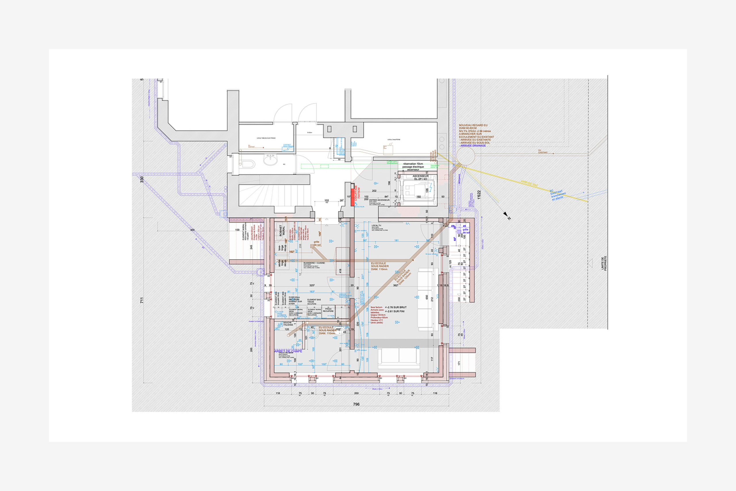
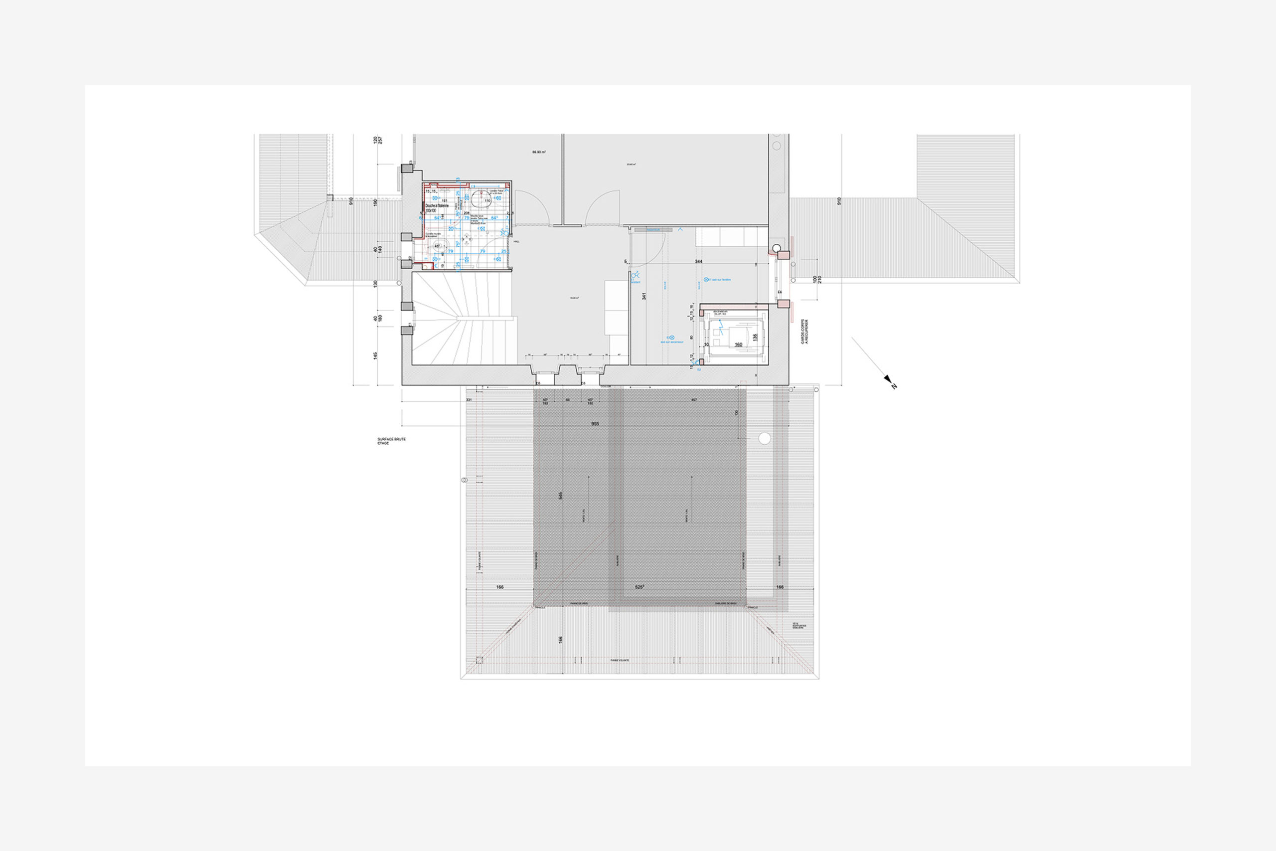
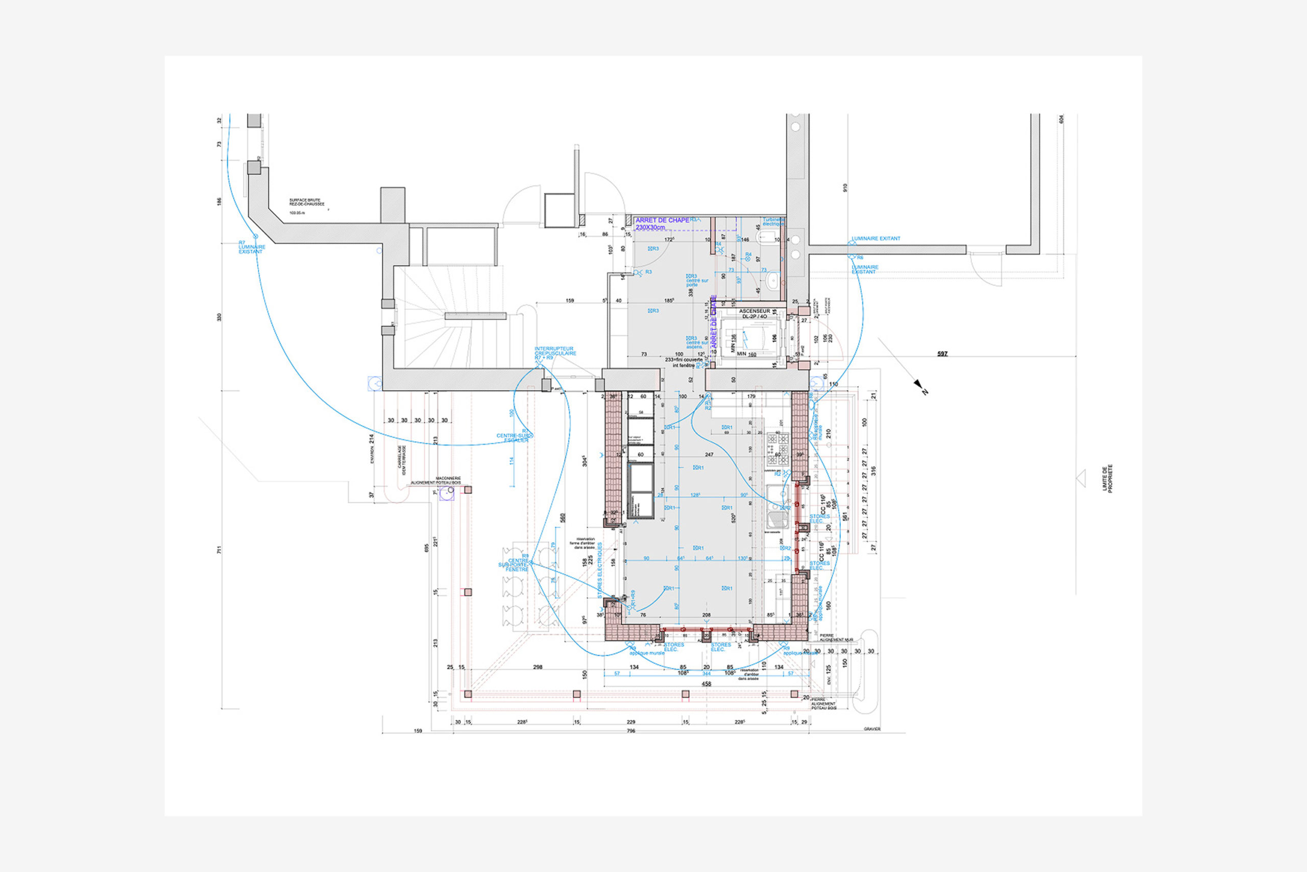
La cuisine d'origine dispose d'un accès de service orienté vers le nord qui n'apporte que peu de lumière naturelle, disposition typique de l'époque mais qui ne correspond plus à la fonction de pièce à vivre d'aujourd'hui. Le projet d'agrandissement prévoit une grande cuisine largement éclairée avec un accès vers une nouvelle terrasse tournée vers le jardin. L'ancienne cuisine et la petite pièce du premier étage sont transformé en cage d'ascenseur afin de relier les étages sans avoir à installer un fauteuils monte-escalier. Le sous-sol se compose d'une nouvelle buanderie, d'un grand salon et d'une salle de douche. La toiture de l'agrandissement s'avance et couvre la nouvelle terrasse afin de composer, pour reprendre l'expression du propriétaire « une pièce à l'extérieur ». L'aménagement extérieur a été pensé comme une promenade composées de courbes dans lesquelles s'inscrivent plantations variées et cheminements en gravier lié.
03 / Continuer une histoire
Le projet d'agrandissement a pour ambition de préserver l'architecture remarquable de cette villa. Soubassement en pierre de Meillerie, boiserie en chêne, encadrements en pierre tendre, parquet en pitch pin, charpente ouvragée et motifs Arts Déco sculptés ou peints forment un ensemble patrimonial harmonieux. Afin d'éviter une isolation extérieur qui contredirait ces principes de construction massive, les murs de l'extension sont en briques isolantes monolithiques et les nouveaux encadrements des fenêtres comme la cadette ceinturant la terrasse sont en pierre calcaire massive. Le garde-corps en ferronnerie de style art déco, renvoie à la végétation alentour. La charpente de l'agrandissement adopte également des motifs décoratifs et floraux avec des corbeaux moulurés et des têtes de chevrons ouvragées dans le même style que la toiture existante. L'ouverture de la trémie d'ascenseur et des murs de façade vers l'agrandissement a nécessité de déposer de lourdes pierre. La maison a été habitée durant toute la durée du chantier, ce qui a nécessité des adaptations tels que des accès et cuisines provisoires.







04 / Anecdote
À Genève, la protection des monuments historiques est connue pour son exigence. Alors, quand notre projet d'agrandissement construit en 2011, a été mentionné dans le Recensement architectural du canton de Genève (RAC-2017) avec la mention « ne détonne pas excessivement », nous avons pris cela comme un véritable compliment.
Autres projets
706famille + jeanne hersch + première villa + cheminée + 2007 + escalier + apa 28944 + rouge + surélévation
1203articulation + apa 36995 + béton ciré + losanges + spirale + volumes ouverts
1302transmission familiale + minimalisme + Coltrane + indépendance + terrasse arborée + finesse + jazz + légèreté
2308dichoïque + jorge cañete + intelligence artificielle + rue du Rhône + onirique + café + APA 329424 + IDP + chocolat + Genilac + écailles métalliques + design + écrans intégrés + multi-sensoriel + laiton
2107pavillon • zinc quartz • diplomatie • réception • souq • lumière naturelle • dd112525 • symétrie • pascal fantin • transparence
1001tuiles + chambre de bonnes + vide + charpente + frigo encastré + îlot central + escalier chêne-sapin + lucarnes + volet + nid + charles eames + combles
909élégance + cologny + jacuzzi + crema marfil + cheminée + bibliothèques
